1. 서 론
2. 응답변위법(Response Displacement Method, RDM)에 의한 공동구의 내진성능평가
3. 응답이력해석(Response History Analysis, RHA)에 의한 공동구의 내진성능평가
4. 공동구 내진성능평가기법의 비교
4.1 성능평가 단면
4.2 응답변위법에 의한 내진성능 평가
4.3 응답이력해석(Response History Analysis, RHA)에 의한 내진성능 평가
4.4 해석기법에 따른 성능평가 결과
5. 결 론
1. 서 론
최근 도시화로 인한 심각한 교통난 해소 및 공간부족 현상 해결을 위하여 대심도 도시철도망의 건설, 지하역사 및 상가와 같은 대심도 지하공간 개발사례들이 증가하고 있다. 이러한 지하공간 개발은 대규모 토지수용 없이 교통인프라를 조성할 수 있으며, 지하화 되는 지상공간 또한 개발할 수 있는 장점을 가지고 있다. 이런 개발 방식을 통하여 친환경 도시의 조성이 가능하며, 대로나 철로로 인해 단절된 도시공간을 회복시킬수도 있다. 지하공간 개발에 사용되는 대표적인 구조물은 개착식 박스형 콘크리트 구조물이다. 국내에서 박스형 지중구조물은 내진설계가 적용되기 이전부터 설계·시공되어 내진설계가 적용되지 않은 경우가 많아, 최신 내진설계기준 및 성능평가 기법에 따른 정확한 내진성능평가가 요구되고 있다. 개착식 지중구조물은 지진에 의한 관성력을 발생시킬 수 있는 질량이 크지 않아, 지상구조물에 비하여 상대적으로 지진에 대하여 안전한 구조형식으로 간주되어 왔다. 그러나, 1995년 1월 17일 일본 효고현 남부 지진으로 고베시 Daikai 지하철역사의 피해가 발생하여 내진설계가 적용되지 않은 기존 지중구조물에 대한 내진성능평가의 필요성이 제기되었다(Uenishi and Sakurai, 2000). Daikai 지하철 역사 피해사례는 개착식 지하공간인 지하철역의 대표적인 지진 피해사례로, 피해조사결과 연직방향 지진하중에 의한 기둥의 압축파괴가 발생된 것을 확인하였다.
현재 우리나라 지중구조물의 내진설계기준으로는 「터널 내진설계(KDS 27 17 00 : 2018)」와 「공동구 설계기준(KDS 11 44 00 : 2018)」이 있으며, 「지진·화산재해대책법」에 따라 「도시철도 내진설계기준」도 개정되어 있다. 먼저, 「터널 내진설계」에서는 지진해석 방법으로 응답변위법, 동적해석법, 유사정적해석법을 제시하고 있으며(MOLIT, 2018), 「공동구 설계기준」에서는 응답변위법, 응답이력해석법을 제시하였다(MOLIT, 2018). 「도시철도 내진설계기준」에서는 등가정적해석법(응답변위법, 응답진도법), 동적해석법(응답이력해석법)을 제시하고 있다(MOLIT, 2018). 제시된 설계기준 중 개착식 지중구조물의 내진설계를 제시하는 것은 현재 「공동구 설계기준」과 「도시철도 내진설계기준」 뿐이다. 「공동구 설계기준」에서는 응답변위법을 표준해석법으로 추천하고 있으며, 상세검토가 필요한 경우 응답이력해석법도 사용할 수 있도록 하고 있다.
하지만, 기존시설물에 대한 내진성능평가는 신규시설물의 내진설계와는 다르게 접근하여야 한다. 기존시설물의 내진성능평가는 현재 정상적으로 운영중인 시설물이 보장할 수 있는 최대 지진력의 크기를 검증하는 절차로, 지진시 시설물의 성능수준(기능수행 또는 붕괴방지)을 만족할 수 있는지를 검토하는 과정이다. 그러나, 아직까지 대부분의 내진성능 평가에서는 개정된 내진설계기준을 따른 설계과정의 반복에 불과한 검토가 시행되고 있다. 그 결과, 성능수준의 확인, 정확한 내진보강 부위의 결정 등 성능평가 결과에 기반한 의사결정에 어려움이 발생하고 있다. 이러한 문제점들을 개선하기 위해서는 시설물의 현재 상태를 반영한 하중조건, 내하력에 대한 정확한 평가가 이루어져야 하며, 소성상태를 고려하는 붕괴방지수준에 대한 검토를 위해서는 지반-구조물 상호작용을 고려할 수 있는 응답이력해석이 필요하다.
현재 「공동구 내진설계기준」에서 기본 해석방법으로 사용되는 응답변위법은 강도설계법에 따른 설계기법에 기반한 해석방법이다. 강도설계법은 하중조합에 근거하여 중첩의 원리(Superposition theory)를 이용한 하중조합을 적용함에 따라 선형탄성재료에만 적용하여야 한다. 따라서, 현행 내진설계법으로 내진성능평가에서 요구하고 있는 소성거동을 허용하는 붕괴방지수준의 성능수준을 평가하기 위해서는 별도의 방법이 제시되어야 한다. 하지만, 현행 「시설물의 안전 및 유지관리에 관한 특별법」에서는 내진설계기준에 따라 내진성능평가가 시행되도록 규정하고 있는 실정이다(Special Act on the Safety Control And Maintenance of Establishments, 2018). 이에 대해서 법령해석에 따른 이견이 있을 수 있으나, 현재 시설물의 내진성능평가는 대부분 내진설계기준에 준하여 시행되고 있다.
현행 「기존 시설물(공동구) 내진성능 평가요령」은 2019년 시행된 ‘공동구 내진성능 평가요령 제정 연구’의 결과로 2020년 7월 공개되었다(KISTEC, 2020). 본 요령에서는 관련 내진설계기준들의 제·개정사항이 적용되어, 내진성능평가법으로 응답변위법을 기본 해석법으로 제시하였으며 응답이력해석의 적용도 가능하게 하였다. 본 요령에서는 기존구조물에 대한 성능평가를 위해서 「기존 콘크리트구조물의 안정성 평가기준(KDS 14 20 90 : 2016)」에 따른 안정성 평가를 기본으로 하여, 응답변위법 적용시 지반의 비선형 거동을 고려한 변형계수 산정방법을 제시하고 있는 것이 현행 「공동구 내진설계기준」과의 가장 큰 차이점이라 할 수 있다(MOLIT, 2016).
본 논문에서는 「기존 시설물(공동구) 내진성능 평가요령」에서 제시하고 있는 두 가지 성능평가방법을 소개하고, 각 방법에 따른 성능평가 결과의 차이를 살펴보고자 한다. 본 논문의 결과는 향후 「공동구 내진설계기준 및 기존 시설물(공동구) 내진성능 평가요령」의 개정을 위한 기초자료로 사용될 수 있을 것으로 기대하며, 내진성능평가에 적용되는 여러 해석기술은 성능기반 내진설계기준의 도입을 위한 기술로 활용되어 우리나라 내진설계기술의 발전에 큰 역할을 담당할 수 있을 것으로 기대한다.
2. 응답변위법(Response Displacement Method, RDM)에 의한 공동구의 내진성능평가
응답변위법의 이론에 대한 설명은 참고문헌으로 갈음하며(Kim et al., 2006), 본 논문에서는 신설된 「기존 시설물(공동구) 내진성능 평가요령」에서 기존 응답변위법과 다른 부분에 대해서만 설명하고자 한다.
Fig. 1은 응답변위법의 개념을 설명하고 있다. 응답변위법은 종방향으로 연속된 공동구 구조물을 슬래브, 측벽 및 중간 기둥으로 구성되는 라멘구조로 이상화하여 단위길이에 대한 횡단해석을 실시한다. 공동구를 둘러싸고 있는 지반은 등가의 강성을 가지는 스프링(KV, KSB, KH, KSS)으로 공동구 구조물에 부착되어, 이를 통하여 지진하중은 지진재하기간 중 가장 큰 지반의 상대변위에 의한 하중으로 변환되어 작용된다. 공동구 구조물은 상·하단 슬래브는 보, 나머지 부재는 축력과 휨을 동시에 받을 수 있는 프레임요소로 모델링하는 것이 일반적인 방법이다. 구체적인 해석절차는 Fig. 2와 같다.
기존 응답변위법과 금번 「기존 시설물(공동구) 내진성능 평가요령」과의 차이는 Fig. 2 중 ②, ⑤, ⑥ 의 절차에 적용되었으며, 그 세부사항은 아래와 같다.
기존 공동구 내진설계기준 대비 「기존 시설물(공동구) 내진성능 평가요령」에서의 응답변위법은 전단탄성계수 산정시 보정계수를 사용하여야 한다. 이는 지진시 지반의 변형률의 크기에 따른 지반의 탄성계수 감소현상을 반영하기 위한 것으로, 개정된 「기존 시설물(기초 및 지반) 내진성능 평가요령」의 지반의 비선형성에 대한 경험식을 식 (1), (2)와 같이 준용하였다(KISTEC, 2020).
식 (2)에서, 보정계수 C는 평균전단파속도가 360m/s 이하인 지반에 적용되어야 한다. 이는 비교적 단단한 지반에서 지진시 지반이 겪게 되는 변형률의 크기가 크지 않은 것을 고려한 방법이다. 응답변위법은 구조물 하단을 기준으로 지진시 발생하는 구조물 상단까지의 지반의 최대 상대변위를 등가의 지진하중으로 구조물에 재하하는 방법이다. 지반응답해석 등의 수치해석 방법으로 지진시 깊이별 지반의 수평변위를 산정할 수 있으나, 「기존 시설물(공동구) 내진성능 평가요령」에서는 기반면 속도응답스펙트럼을 이용하는 방법을 적용토록 한다. 상기 내용과 같이, 현행 「기존 시설물(공동구) 내진성능 평가요령」에서는 지진시 깊이별 수평변위 산정에 있어 지반응답해석은 실시하지 않는 것을 원칙으로 하여, 다음 조건에 따라 근사적으로 변위를 추정한다.
(1) 기반면 위에서 지층의 깊이별 전단파속도가 유사한 경우
- 단일층 가정에 의한 단일코사인 방법
(2) 지층내부에 풍화암 또는 연암이 출현하여 표층지반 전단파속도가 2개의 층으로 확연히 구분되는 경우
- 이중층 가정에 의한 이중코사인 방법
Fig. 3은 단일코사인, 이중코사인 방법을 이용한 지중변위 산정법을 표현하였으며, 단일코사인과 이중코사인 방법의 이론식은 「기존 시설물(공동구) 내진성능 평가요령」에 자세히 설명되어 있다(KISTEC, 2020).
응답변위법에서 지반반력계수는 재하폭 산정법과 유한요소법으로 산정할 수 있다. 본 논문에서는, 재하폭 산정법으로 지반반력계수를 산정하여 이에 대한 설명을 수록하였다. 대상 공동구는 Table 1 좌측과 같이 지반반력계수에 의한 4면지지 경계조건으로 모델링 하였으며, 재하폭 산정법에 의한 개별 지반반력계수의 계산식은 Table 1 우측에 나타나 있다.
Table 1.
Modeling of utility tunnel and subgrade reaction modulus
3. 응답이력해석(Response History Analysis, RHA)에 의한 공동구의 내진성능평가
지진시 지반-공동구의 상호작용과 소성거동을 포함하는 지중 공동구의 응답을 예측하기 위한 최선의 방법은 응답이력해석이다. 응답이력해석은 유한차분 또는 유한요소법을 이용하여 지반을 연속체로 모델링하고 공동구 구조체는 구조요소로 모델링하여 시간적분을 통해 지진시 응답을 예측할 수 있다. 시간영역 적분법은 양해법(Explicit method)과 음해법(Implicit method)이 있으며, 각각 유한차분법과 유한요소법에 최적화된 방법이라 할 수 있다(Dokainish and Subbaraj, 1989; Subbaraj and Dokainish, 1989). 공동구의 비선형 응답이력해석을 위해서는 지반 및 공동구 구조물의 소성해석이 동시에 가능하여야 한다. 이를 위하여 지반요소는 소성파괴 이전 비선형 거동을 나타낼 수 있어야 하며, 공동구 구조요소는 휨과 축력을 동시에 받으며 항복 이후 소성힌지가 형성될 수 있어야 한다. 또한, 지반-공동구 인접면 경계요소가 사용되어 두 이질재료 간의 분리거동이 가능하여야 한다. 최종적으로 비선형 응답이력의 해석결과로부터 공동구의 영구변위, 소성힌지 발생 메커니즘에 따른 붕괴발생여부 등을 판단하여 구조요소 및 비구조 요소의 성능목표 달성여부를 결정하여야 한다. 신설된 「기존 시설물(공동구) 내진성능 평가요령」에서는 상기 조건을 만족하는 응답이력해석을 이용한 내진성능평가 절차를 제시하고 있다. 내진성능평가에 비선형 응답이력해석을 적용하는 경우, 사용되는 입력지진파형에 따라 그 결과가 다르게 나타날 수 있다. 따라서, 현행 「기존 시설물(공동구) 내진성능 평가요령」에서는 3개 이상의 서로 다른 이벤트의 지진기록을 사용한 해석결과 중 최대값을 이용한 성능평가를 실시하도록 규정하고 있다.
4. 공동구 내진성능평가기법의 비교
본 논문에서는 동일 평가단면에 대해서 현행 「기존 시설물(공동구) 내진성능 평가요령」에서 제시하고 있는 두 가지 성능평가기법인 응답변위법과 응답이력해석으로 내진성능평가를 실시하고 그 결과를 비교·평가하고자 한다.
4.1 성능평가 단면
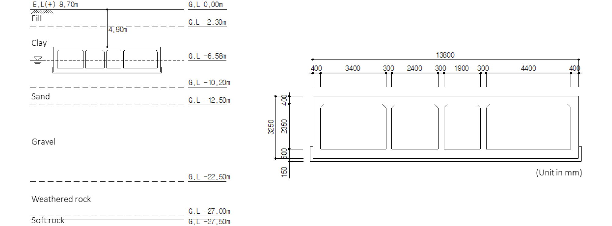
성능평가에 사용된 대상 공동구는 1988년도에 건설되어 내진설계가 적용되지 않은 서울 ○○ 공동구이다. 대상 공동구의 지반조건 및 단면제원은 Fig. 4와 같다. 공동구가 위치한 지역은 지진구역 Ⅰ구역으로 기반암은 연암으로 지표면 하 27.5m(GL -27.5m)에 위치한다. 토층 평균 전단파속도는 약 313m/s로, 해당지역의 지반분류체계는 S4지반(깊고 단단한 지반)에 해당된다. 공동구는 4련으로, 높이 3.25m, 폭 13.8m이다. 지하수위는 공동구 중간에 위치하는 것이 확인되었으며, 퇴적토 점토층에 위치하여 지진시 지반의 변형이 크게 발생할 수 있는 지층 내에 위치하고 있다. 지반조사결과로 결정된 내진성능평가를 위한 지반구분 및 지반정수는 Table 2와 같다. Table 2의 탄성계수는 식 (2)의 보정계수 C를 고려하여 산정된 결과이다.
Table 2.
Engineering parameters of the site
평가대상 공동구는 내진 I등급 구조물로 기능수행 및 붕괴방지 수준의 성능목표에 대해서 성능평가를 위한 지진재현주기(년)는 각각 100년과 1000년이다. 이에 따른 기반암 노두의 최대수평지반가속도는 기능수행수준은 0.0627g, 붕괴방지수준은 0.154g로 결정되었다.
4.2 응답변위법에 의한 내진성능 평가
응답변위법을 이용한 지중구조물의 내진성능평가는 구조요소로 모델링된 지중구조물에 대한 지진시 하중조합의 검토로 시행된다. 이를 위하여 유한요소법을 사용하는 구조해석 프로그램이 주로 사용되며, 본 논문에서는 MIDAS IT사의 MIDAS Civil을 활용하여 검토를 시행하였다(MIDAS IT, 2019). 현행 「기존 시설물(공동구) 내진성능 평가요령」에서는 지진시 지반의 깊이별 수평변위를 기반면에서 속도응답스펙트럼을 이용하여 토층의 고유주기에서 지표면 최대 변위를 구하고, 지반의 변형 모드를 가정하여 깊이별 지반의 수평변위를 산정하도록 규정하고 있다. 본 대상 공동구에서 기반면은 27m 깊이에 위치한 연암의 상면으로 설정하였다. 기반면 스펙트럼속도를 산정하기 위한 고유주기는 식 (3), (4)에 따라 Ts와 Tg 각각 0.374s, 0.468s로 산정되었다.
기반면에서의 속도응답스펙트럼은 기반암에 해당하는 S1지반의 가속도응답스펙트럼을 직접 적분하여 구할 수 있다. 표층지반의 고유주기에 따른 기반면 속도스펙트럼 계산식은 Table 3과 같으며, 계산된 속도응답스펙트럼을 도시하면 Fig. 5와 같다.
Table 3.
Construction of the base acceleration and velocity spectrum
| Period | Spectral acceleration | Spectral velocity |
대상 공동구가 위치하는 지반은 기반면 위로 풍화암과 퇴적토층이 출현하여 지층의 강성이 확연히 구분됨에 따라 이중코사인 방법을 적용하는 것이 타당하다. 본 논문에서는 응답이력해석과의 비교를 위하여 단일·이중코사인 두 가지 방법을 모두 사용하였으며, 그 결과를 지반응답해석으로 얻어진 깊이별 수평변위와 비교하였다. 상기 방법으로 산정된 지진시 지반의 깊이별 최대변위 분포는 Fig. 6과 같다. Fig. 6에 표시된 지반응답해석 결과는 스펙트럼 보정이 완료된 세 개의 실지진기록(Borah Peak, Nahanni, 경주지진)에 대한 결과이다. 나머지 그래프는 단일 및 이중코사인 결과를 나타내고 있다.
대상 공동구에 대해서 응답변위법 적용을 위해 산정된 지반반력계수는 Table 4와 같다. 지반반력계수는 지반특성을 반영하여 구조해석에서 스프링으로 모델링 하여야 한다. 여기서, 스프링은 변위가 존재해야 힘이 존재할 수 있게 되므로, 토압이 상판, 측벽에 작용하는 상시하중에 대해서는 인장력을 받지 못하는 압축전담 스프링을 공동구 저판에 부착하며, 지진하중에 대해서는 압축과 인장력에 대해 저항할 수 있는 스프링을 공동구 상판·저판, 측벽에 부착한다. 각각의 하중에 따라 스프링을 모델링 한 후에 중첩의 원리에 따라 단면력을 계산하였다.
Table 4.
Subgrade reaction modulus for RDM
| Type | Subgrade reaction modulus (MN/m3) | |
| Tob/Bottom slab | KV (Static case) | 35 |
| KSB (Seismic case) | 10 | |
| Side wall | KSS (Seismic case) | 30 |
응답변위법에서는 상시하중으로 자중, 토압, 수압이 재하되며, 지진하중으로 지반변위에 의한 하중, 주면전단력, 관성력이 재하된다. 상시하중의 산정방법은 본 논문에서 생략하도록 하며, 지진하중 산정방법에 대해서만 논의하고자 한다. 지진하중은 Table 5와 같이 작용하며, 개별하중의 크기는 동반된 계산식에 따라 산정되어 입력하중으로 적용하였다.
Table 5.
Seismic loads acting on the utility tunnel in RDM
| Seismic loads | Nomenclature | Equations |
|
Seismic earth pressure acting on the wall | ![]() | |
|
Shear stress acting along the utility tunnel | ![]() | (Equations for single cosine method) |
|
Inertial force of the utility tunnel | ![]() |
이렇게 산정된 지진하중은 공동구 설계기준(KDS 11 44 00 : 2018)의 하중조합에 따라 상시하중과 조합하여 검토하며, 각 성능수준에 따라 사용되는 하중조합은 Table 6과 같다. 이중코사인을 사용한 응답변위법으로 산정된 공동구의 부재력 분포도는 Fig. 7과 같다. 공동구에 작용하는 휨모멘트, 전단력, 축력은 각각 최대 167.3kN·m, 227.9kN, 288.7kN 으로 나타났으며, 단일코사인과 이중코사인 방법에 따른 결과의 유의미한 차이는 나타나지 않았다. 공동구 구조물 상·하단의 수평 상대변위의 최대값은 0.97mm로 예측되었다.
Table 6.
Load combinations in RDM
| Seismic performance level | Load combination |
| Operation level | U=1.2D+1.0E+1.0L+0.2S |
| U=0.9D+1.0E+1.6(αHHv+Hh) | |
| Collapse prevention level | U=1.0(D+L+H+E) |
응답변위법을 이용하여 공동구의 내진성능평가를 실시하는 경우 강도설계법에 따른 단면검토를 통하여 내진성능목표 달성여부를 판단하여야 한다. 현행 성능평가요령에서는, 기능수행수준에 대한 검토는 설계내하력의 만족여부를 검토하며, 붕괴방지수준에 대한 검토는 설계내하력을 초과하는 경우의 지진력에 대해서 구조물의 소성변형을 허용한 응답수정계수(R)를 적용할 수 있도록 하였다. 응답수정계수를 사용한 붕괴방지수준의 하중조합은 식 (5)와 같으며, 응답수정계수는 휨모멘트에만 적용되며 전단력과 압축력에 대해서는 적용하지 않는다.
응답변위법을 사용한 대상 공동구의 단면력 검토결과 중 붕괴방지 수준에 대한 대표값을 Table 7에 나타내었다. 공동구 구조물에서 가장 큰 단면력이 작용하는 부재는 측벽이며, 단일 및 이중코사인 방법 적용에 따른 차이는 유의미하게 나타나지 않았다. 따라서, 본 논문에서 검토된 공동구는 응답수정계수를 고려하지 않고도 기능수행 및 붕괴방지 수준의 성능목표를 충분히 만족하는 것을 확인할 수 있었다.
Table 7.
Seismic performance evaluation results by RDM for collapse prevention level earthquake
4.3 응답이력해석(Response History Analysis, RHA)에 의한 내진성능 평가
본 논문에서 비선형 응답이력해석은 Itasca 사의 FLAC 2D로 시행되었다(Itasca, 2020). 수치해석 영역은 Fig. 8과 같이 수평 90m, 연직 27.5m의 크기로, 유한차분 요소의 크기는 입력 지진에너지의 전달이 충분한 크기로 모델링 되었으며, 모델의 하단은 탄성암반경계, 좌우 수평경계는 자유장 경계가 사용되었다. 동해석 이전 공동구 시공단계를 따라 정적평형해석을 수행하였으며, 공동구 구조물과 지반 간의 경계요소가 적용되었다. 해석모델의 입력변수로 사용된 지층별 밀도, 전단파속도 및 강도 정수는 Table 2를 참조하여 결정되었으며, 지반의 비선형 거동은 점토, 모래에 대하여 각각 소성지수에 따른 제안곡선과 Seed & Idriss의 중간곡선을 참조하여 사용하였다(Vucetic and Dobry, 1991, Seed and Idriss, 1970). 이외, 풍화암과 매립층은 Choo & Kim의 제안곡선을 사용하였으며 퇴적자갈은 Rollins의 제안곡선을 적용하였다(Choo and Kim, 2001; Rollins et al., 1998). 제안곡선은 FLAC에서 제공되는 피팅곡선을 이용하여 가장 정확한 피팅결과를 제공하는 곡선이 사용되었다. 공동구 구조물은 휨과 압축력을 동시에 받을 수 있으며, 항복 후 소성힌지가 형성될 수 있는 Liner 요소를 사용하여 모델링 되었다(Itasca, 2020). 따라서, 단면 조건에 따라 계산된 Liner 요소의 성능곡선이 입력변수로 사용되어, 시간이력 해석 중 Liner 요소의 부재력이 성능곡선을 초과하는 위치에 소성힌지가 발생한다. 비선형 응답이력해석의 결과는 입력지진파형의 영향을 받는다(Lee et al., 2019). 따라서, 현행 「기존 시설물(공동구) 내진성능 평가요령」에서는 최소 3개의 서로 다른 이벤트 지진기록을 스펙트럼 보정하여 사용하도록 규정하고 있으며, 그 결과 중 최대값에 대한 평가를 하도록 규정하고 있다. 대상 공동구의 비선형 응답이력해석에 사용된 지진기록은 Table 8, Fig. 9와 같다.
Table 8.
Input motions used in RHA
비선형 응답이력해석 결과, 대상공동구는 기능수행수준의 지진에 대해서 모두 안전한 것으로 확인되었다. 그러나, 붕괴방지수준의 지진에 대해서는 지진하중 재하시간 중 일시적으로 평가내하력이 부족하여 소성힌지가 발생하였다. Table 9는 붕괴방지수준에 대한 RHA 결과로, 성능곡선으로부터 모든 입력지진기록에 대해서 우각부에서 부재력이 일시적으로 항복강도에 도달하여 소성힌지가 발생하는 것이 확인되었다. 다만, 소성힌지의 발생이 반드시 구조물의 붕괴로 이어지는 것은 아님에 따라, 현행 「기존 시설물(공동구) 내진성능 평가요령」에서는 소성힌지 발현에 따른 모멘트 재분배과정(Re-distribution of bending moment)과 붕괴기구(Collapse mechanism)를 확인하여 붕괴여부를 판단하도록 규정하고 있다. 본 논문에서 사용된 유한차분해석 프로그램인 FLAC에서는 동해석시 불균형력(Unbalanced force)의 수렴여부에 따른 붕괴여부 판단이 가능하여 소성힌지가 발생하였지만 붕괴로 이어지지 않음이 확인되었다. 또한, 본 논문에서 사용된 RHA 모델은 실제 우각부 헌치(Haunch)에 따른 성능곡선의 변화를 반영하지 않았으므로 이에 대한 상세검토는 추가 검토가 필요한 사항이라 할 수 있다.
Table 9.
Seismic performance evaluation results by RHA for collapse prevention level earthquake
| Performance diagram at point A | Deformed shape and plastic hinge point |
![]() | ![]() |
| Borah Peak earthquake | |
![]() | ![]() |
| Nahanni earthquake | |
![]() | ![]() |
| Gyeongju earthquake | |
4.4 해석기법에 따른 성능평가 결과
본 논문에서는 기존 시설물(공동구) 내진성능 평가요령에서 제시하고 있는 응답변위법과 비선형 응답이력 기법을 적용하여 예제 공동구의 내진성능평가를 실시하였다. 평가결과, 기능수행수준의 지진에 대해서는 두 기법의 결과 모두 공동구 구조물의 부재력이 탄성범위내에 존재함이 확인되었다. 그러나, 붕괴방지수준의 지진에 대해서 RDM은 공동구 구조물의 부재력이 탄성범위 내에 존재하는 것으로 확인된 반면, RHA에서는 일부 소성힌지가 발생하였다. 이러한 평가결과의 차이는 공동구 주변 지반을 모델링하는 두 기법의 근본적인 차이로 인하여 구체적인 원인 규명이 어려운 실정이다. 실제, RHA는 공동구 주변의 지반을 연속체로 모델링하여 해석에 반영하는 반면, RDM은 강도설계법에 기반한 하중조합에 따라 지반을 구조물에 부착된 지반반력 스프링과 별도 작용하는 토압으로 모델링하여 상시하중 하의 부재력에서도 두 기법의 차이가 나타난다. Fig. 10과 Table 10은 상시하중 하에서 RDM과 RHA의 부재력 산정결과로 RHA의 결과가 크게 나타남을 확인 할 수 있다.
Table 10.
Member force under static load combination
상시하중 외에도 지진력의 산정과정에서도 두 기법의 근본적인 차이가 발생할 수 있으며, 특히 지진시 추가 부재력을 유발하는 지진시 지반의 변위는 Fig. 6에 나타난 것과 같이 차이가 발생할 수 있으므로 향후 RDM의 적용과정에서 단일 및 이중코사인 방법 외 지반응답해석의 결과를 추가하는 것을 고려할 필요가 있다고 사료된다.
5. 결 론
본 논문에서는 대표적인 개착식 지중구조물인 공동구의 내진성능평가에 있어서 최근 개정된 「기존 시설물(공동구) 내진성능 평가요령」에서 제시된 응답변위법과 비선형 응답이력해석에 대한 비교·검토를 실시하였다. 검토에 사용된 공동구에 대하여 응답변위법에서는 단일 및 이중코사인 방법에 따른 지진하중을 산정하여 재하 하였으며, 비선형 응답이력해석에서는 지반의 비선형거동과 소성힌지 발현이 가능한 구조요소로 모델링된 수치해석 모델을 이용하여 서로 다른 3개의 실지진기록에 대한 평가를 실시하였다. 붕괴방지수준의 지진에 대한 평가결과 응답변위법을 적용한 경우 공동구 구조물이 탄성영역내 거동하여 성능목표를 만족함을 확인할 수 있었다. 반면, 비선형 응답이력해석 결과 일부 우각부에서 소성힌지가 발생하였으나, 전체 공동구의 붕괴로 이어지지는 않는 것이 확인되었다. 내진성능 평가결과의 차이는 두 평가방법의 근본적인 차이로 인하여 명확한 원인분석은 어려우나, 상시하중 하에서 발생하는 부재력 크기의 차이와 지진시 지진력 결정을 위한 지반의 최대상대변위 차이에 기인하는 것으로 판단된다. 따라서, 향후 평가 및 연구사례를 축적하여 응답변위법을 이용한 공동구의 내진성능평가방법의 개선방향이 도출되어야 할 것으로 판단된다. 다만, 현행 「기존 시설물(공동구) 내진성능 평가요령」에서는 응답변위법을 기본 평가방법으로 제시하고 있음에 따라, 비선형 응답이력해석의 추가해석으로 응답변위법에서 고려하지 못하는 상황을 확인할 필요가 있다. 마지막으로, 공동구와 같이 비구조요소(라이프라인)를 수용시설로 하는 구조물의 내진성능평가는 지진시 비구조요소의 성능목표 달성여부 또한 내진성능을 결정하는 주요 판단기준이 될 수 있으므로, 이에 대한 검토절차 또한 향후 수립되어야 할 것으로 판단된다.
List of symbols
ai : 해당깊이에 대해 보정한 수평지진가속도(m/sec2)
Bh : 구조물 높이(m)
Bv : 구조물 상판/저판 폭(m)
C : 지반변형에 대한 보정계수
CD : 감쇠보정계수,
D : 고정하중
E : 지진하중
fi : i번째 구조물의 관성력(kN/m)
g : 중력가속도(m/sec2)
Gd : 지반의 동적전단탄성계수(kPa)
H : 토압 및 수압
Hh : 수평방향 토압 및 수압
Hv : 연직방향 토압 및 수압
kh0 : 지름 0.3m의 강체원판에 의한 평판재하시험의 값에 상당하는 수평 지반반력계수(kN/m3),
kv0 : 지름 0.3m의 강체원판에 의한 평판재하시험의 값에 상당하는 연직 지반반력계수(kN/m3),
KH : 구조물 측벽의 수평 지반반력계수(kN/m3)
KSB : 구조물 상판 및 저판의 전단 지반반력계수(kN/m3)
KSS : 구조물 측벽의 전단 지반반력계수(kN/m3)
KV : 구조물 상판 및 저판의 연직 지반반력계수(kN/m3)
L : 활하중
mi : i번째 구조물 질량(kN/m)
p0 : 상판의 상면에 작용하는 지반변위에 의한 하중(kN/m2)
p(z) : 지표면으로부터 깊이 z 지점에 작용하는 수평방향 하중(kN/m2)
R : 응답수정계수
S : 유효수평지반가속도(Table 3)
S : 적설하중(Table 6)
Sv : 기반면에서의 속도응답스펙트럼(m/s)
Tg : 표층지반의 특성값(s)
Ts : 표층지반의 고유주기(s)
U : 소요강도
Uh(z) : 지표면으로부터 깊이 z 지점의 수평방향 변위 (m)
Uh(zB) : 지표면으로부터 깊이 zB 지점의 수평방향 변위(m)
Uh(zU) : 지표면으로부터 깊이 zU 지점의 수평방향 변위(m)
Vs : 현장에서 측정된 평균전단파속도(m/s)
VDS : 설계전단파속도(m/s)
wi : i번째 구조물 중량(tf/m)
zB : 지표면으로부터 구조물 저면까지의 깊이(m)
zU : 지표면으로부터 구조물 상판의 상면까지의 깊이(m)
αH : 매설깊이(h)에 따른 분산보정계수, kv0 : 지름 0.3m의 강체원판에 의한 평판재하시험의 값에 상당하는 연직 지반반력계수(kN/m3),
γ : 지반의 단위중량(kN/m3) λ=1/3~1/4
ξ : 감쇠비, ξ=10(기능수행수준), 20(붕괴방지수준)
τB : 구조물 저판의 주면전단력(kN/m2)
τS : 구조물 측벽의 주면전단력(kN/m2)
τU : 구조물 상판의 주면전단력(kN/m2)






















